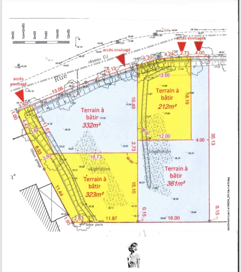
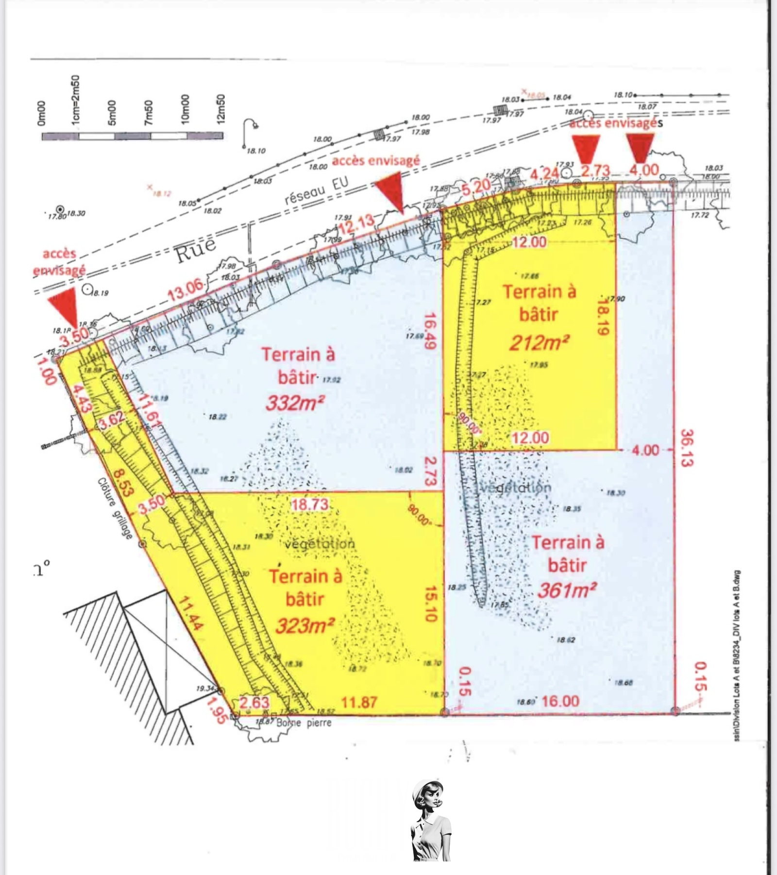
L'Aiguillon-sur-Vie (85220)

Terrain

361 m²
52 200 €
Réf 704

L'AIGUILLON SUR VIE - Secteur de la Grève / La Marguerite, venez découvrir ce terrain à bâtir de 361 m2 dans un environnement arboré pour votre futur projet de construction 

Zone Ub du Plu


Les informations sur les risques auxquels ce bien est exposé sont disponibles sur le site Géorisques

Bilan énergétique

Diagnostics énergetiques
A propos de ce bien Caractéristiques de ce bien
  • terrain 361 m²

Financier

Informations financières
Prix de vente honoraires TTC inclus 52 200 €
Prix net vendeur 46 200 €
Prix de vente honoraires TTC exclus 46 200 €
Honoraires TTC à la charge acquéreur 12,99 %

Simulation

Calcul des mensualités
* Champs obligatoires
BUCHY Immobilier Agence